Строительство домов
Малоэтажное строительство под ключ. Найдёте дешевле — сделаем скидку!
Официальный торговый представитель компании «Техноальянс». Совместно разрабатываем и строим дома под ключ. Все проекты сдаются в полностью пригодном для въезда и жизни состоянии.
Важно: строим только по своим проектам и чертежам.
Проекты




Барн «Базовый»
Отличное решение для загородного домика и круглогодичного проживания маленькой семьи. 40,9 м².




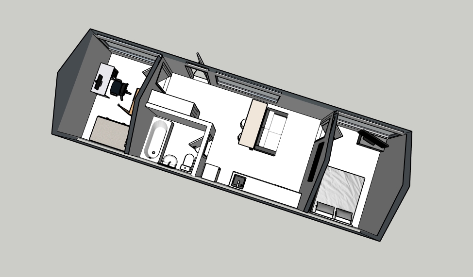
Барн «Комфорт»
Решение для семьи с двумя детьми. Максимально практичный барн для жизни. 51,8 м².

Барн «Воздух»
Огромные потолки, панорамные окна, второй этаж мансардный. 53,7 м².
Условия
Для всех проектов действуют одинаковые условия:
Сдача под ключ
Дома сдаются в готовом для въезда виде с отделкой и разводкой всех коммуникаций.
Индивидуальный расчёт
Рассчитываем проекты индивидуально под конкретный участок.
Фундамент
Плита на ж/б сваях — надёжное основание для камчатского климата.
Материалы
Пиломатериал камерной сушки. Плёнки и утеплители топовых производителей.
Выбор отделки
Шлифованная фанера, имитация бруса, гипсокартон под обои.
Дополнительные опции
Любые улучшения за отдельную плату. Подвод коммуникаций и септик входят в стоимость.